Gör en intresseanmälan
Indikativ hyra1.500 kr/kvm/år
Indikativ månadshyraKontakta Lokalförmedlare
KommunGöteborg
AvtalstypLedig
Våning2
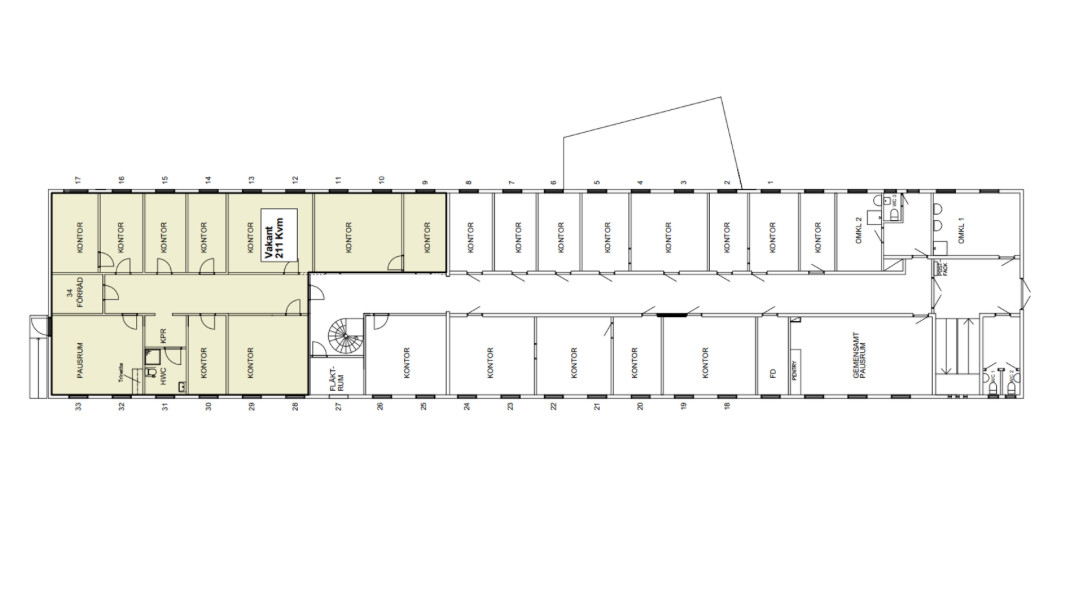
Area 211 kvm

- Christian Ulkner
VD/Delägare - Tel: 0738-11 02 63
- christian.ulkner@nyakvadrat.se
- Åvägen 17C
- 412 51 Göteborg
- info@nyakvadrat.se
Indikativ hyra1.500 kr/kvm/år
KommunGöteborg
AvtalstypLedig
Våning2
Area 211 kvm
Öppen yta i entréplan för co-working och service i totalrenoverad fastighet!
Kontorsfastighet med lager och förrådsdel.
Planlösning
Fakta
Närservice
Omgivning
Unsupported video platform or invalid link.



